Ander pand - te koop - 4280 Hannut 850.000 €

Ander pand - te koop - 4280 Hannut
5 3 590 m² PEB : A

Beschrijving

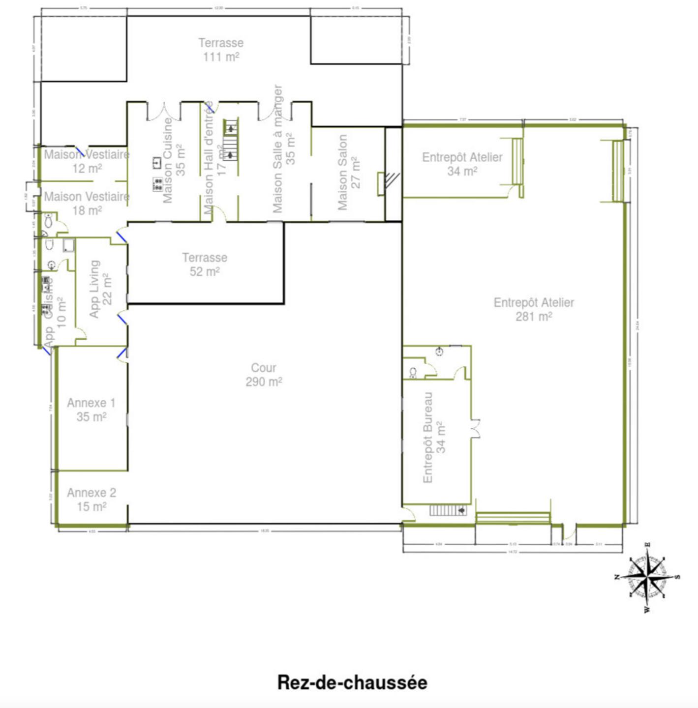
Charmante boerderij, met een aangename vierkante binnenplaats, volledig gerenoveerd door het behoud van het gebouw en de integratie van hoogwaardige materialen om modern comfort te bieden.

Het landgoed heeft ± 1 ha 34 a 95 ca, bestaande uit de gebouwen, een grote tuin, prachtige weiden, een hal/schuur met meerdere gebruiksmogelijkheden, .....

De bijgebouwen zijn casco afgewerkt zodat ze kunnen worden aangepast aan de wensen van de koper door ze af te werken met extra accommodatie zoals een conciërgewoning of andere accommodatie...

Het hoofdgebouw: Het is een volledig afgewerkte woning van topklasse.

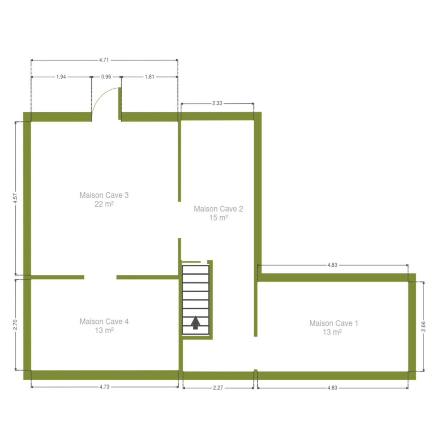
Kelders: Diverse kelderruimtes.

Begane grond: Grote inkomhal die de eerder genoemde benedenverdieping en de verdiepingen bedient, een lichte eetkamer die leidt naar een ruime woonkamer met cassette, een hyperuitgeruste keuken die uitgeeft op een groot en aangenaam terras/tuin, verschillende bijkeukens, ...

Algemeen

Referentie 5254776
Categorie Ander pand
Gemeubeld Nee
Aantal kamers 5
Aantal badkamers 3
Tuin Ja
Terras Ja
Parking Ja
Bewoonbare oppervlakte 590 m²
Oppervlakte van het terrein 13495 m²
Beschikbaarheid vanaf akte

Energie

EPC-klasse A
EPC (Kwh/m²/j) 83
E totaal (Kwh/jaar) 34852
EPC unieke code 20220610020913
Contact opnemen voor het pand : 5254776

* Verplichte velden

Cookievoorkeuren

De bescherming van uw persoonsgegevens is belangrijk voor ons. Daarom beschrijven we hieronder de verschillende diensten en functies van de site die cookies gebruiken en laten we u beslissen welke cookies u wilt toestaan ​​of weigeren.

Houd er echter rekening mee dat als u bepaalde soorten cookies blokkeert, dit van invloed kan zijn op uw browse-ervaring op onze site en op de beschikbare functies.

We gebruiken verplichte functionele cookies om de site goed te laten werken. Ze zijn bijvoorbeeld nodig om het resultaat van een zoekopdracht te vinden of om de taalkeuze op te slaan.

Sommige functies, zoals de weergave van video's of kaarten, worden geleverd via externe componenten die zijn ontwikkeld door partners zoals YouTube of Google. Bepaalde componenten gebruiken cookies die deze derden waarschijnlijk in staat stellen het gedrag van internetgebruikers te volgen om bijvoorbeeld reclametargeting uit te voeren. De activering van deze functies en de bijbehorende cookies is daarom onderworpen aan uw toestemming.